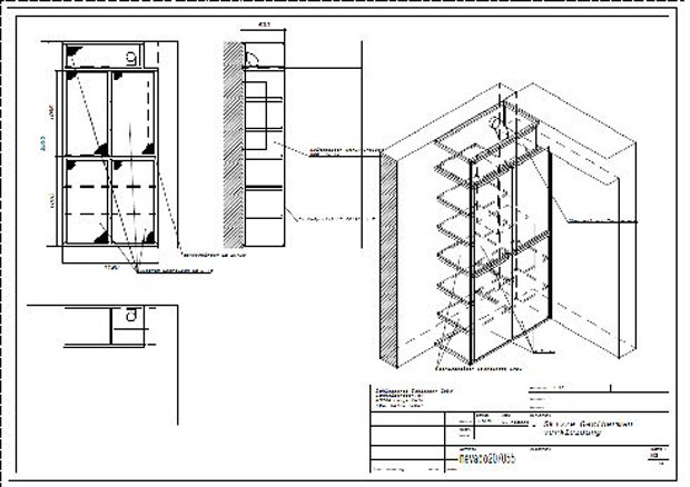
W domu Franka Schäfera z Düsseldorfu gazowa terma, która szpeciła ściany jadalni została zabudowana blachą perforowaną.
- Obudowa musiała pasować do designu kuchni. A przy tym nie można było ograniczyć funkcjonalności termy, którą trzeba konserwować i regularnie nastawiać. Innymi słowy: konieczne było zapewnienie do niej dostępu – mówi Frank Schäfer.


Perforowana blacha stalowa, która wykorzystana została do wykonania zabudowy terma zapewnia konieczną cyrkulację powietrza i gwarantuje w ten sposób przestrzeganie przepisów prawnych.
Blacha perforowana jest odporna na zniszczenia i nawet po wielu latach wciąż ładnie się prezentuje.

Szkic obudowy termy gazowej w formie szafy (perforacja kwadratowa w stali nierdzewnej). Mevaco





